Maison à étage traditionnelle: MT19

Style : Traditionnel
Maison à étage traditionnelle: MT19

Les points forts

  • 3 chambres
  • 101,03 m²
  • livraison à partir de 6 mois

Votre maison, vos préférences

Les maisons Guillerm Habitat sont entièrements personnalisables. De l'étude de vos besoin à la réalisation et la construction de votre future maison, votre conseiller dédié vous accompagne, vous conseille et vous épaule à chaque étape.

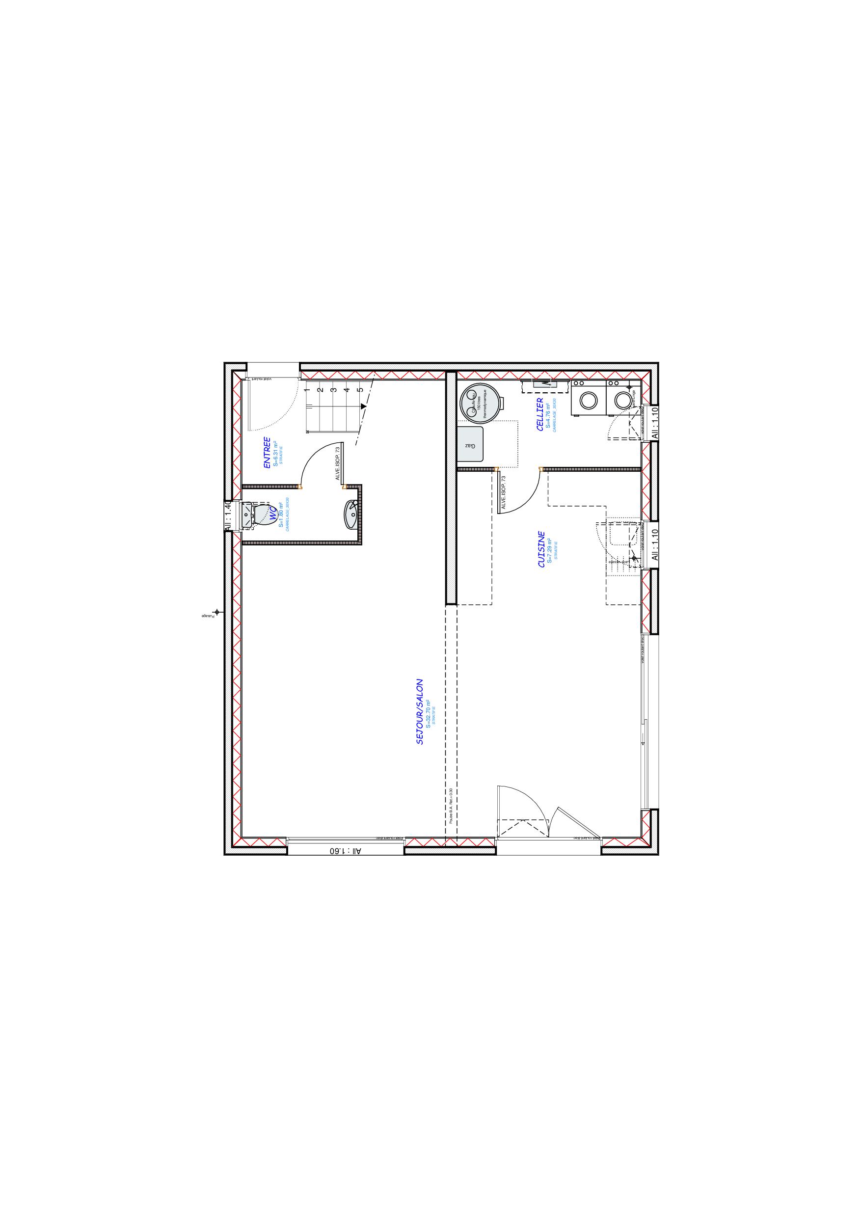
Plans

Vue en plan du rez-de-chaussée
Vue en plan du rez-de-chaussée Télécharger
Vue en plan de l'étage
Vue en plan de l'étage Télécharger
Votre conseiller

Du lundi au vendredi de 09h à 18h 0298613022

Nos autres maisons à étage

Maison contemporaine à étage: MC01

Maison à étage contemporaine: MC01

Délai : à partir de 6 mois Superficie : 137,53 m²

Maison à étage contemporaine: MC02

Maison à étage contemporaine: MC02

Délai : à partir de 6 mois Superficie : 157,38 m²

Maison à étage contemporaine: MC03

Maison à étage contemporaine: MC03

Délai : à partir de 6 mois Superficie : 155,43 m²

Maison à étage contemporaine: MC01

Maison à étage contemporaine: MC04

Délai : à partir de 6 mois Superficie : 122 m²

Maison à étage contemporaine: MC05

Maison à étage contemporaine: MC05

Délai : à partir de 6 mois Superficie : 153,05 m²

Image sans description

Maison à étage contemporaine: MC06

Délai : à partir de 6 mois Superficie : 112,08 m²

Image sans description

Maison à étage contemporaine: MC07

Délai : à partir de 6 mois Superficie : 106,64 m²

Maison à étage contemporaine: MC08

Maison à étage contemporaine: MC08

Délai : à partir de 6 mois Superficie : 127 m²

Maison à étage contemporaine: MC09

Maison à étage contemporaine: MC09

Délai : à partir de 6 mois Superficie : 127,21 m²

Maison à étage traditionnel: MT01

Maison à étage traditionnelle: MT01

Délai : à partir de 6 mois Superficie : 105,94 m²

Maison à étage traditionnel: MT02

Maison à étage traditionnelle: MT02

Délai : à partir de 6 mois Superficie : 100,18 m²

Maison à étage traditionnel: MT03

Maison à étage traditionnelle: MT03

Délai : à partir de 6 mois Superficie : 93,13 m²

Maison à étage traditionnel: MT04

Maison à étage traditionnelle: MT04

Délai : à partir de 6 mois Superficie : 106,68 m²

Maison à étage traditionnel: MT05

Maison à étage traditionnelle: MT05

Délai : à partir de 6 mois Superficie : 127,26 m²

Maison à étage traditionnel: MT06

Maison à étage traditionnelle: MT06

Délai : à partir de 6 mois Superficie : 117,97 m²

Maison à étage traditionnel: MT07

Maison à étage traditionnelle: MT07

Délai : à partir de 6 mois Superficie : 139,18 m²

Maison à étage traditionnel: MT08

Maison à étage traditionnelle: MT08

Délai : à partir de 6 mois Superficie : 99,56 m²

Maison à étage traditionnelle: MT10

Maison à étage traditionnelle: MT10

Délai : à partir de 6 mois Superficie : 102,11 m²

Maison à étage traditionnelle: MT11

Maison à étage traditionnelle: MT11

Délai : à partir de 6 mois Superficie : 124,22 m²

Maison à étage traditionnelle: MT12

Maison à étage traditionnelle: MT12

Délai : à partir de 6 mois Superficie : 104,97 m²

Maison à étage traditionnelle: MT13

Maison à étage traditionnelle: MT13

Délai : à partir de 6 mois Superficie : 114,08 m²

Maison à étage traditionnelle: MT14

Maison à étage traditionnelle: MT14

Délai : à partir de 6 mois Superficie : 117,06 m²

Maison à étage traditionnelle: MT15

Maison à étage traditionnelle: MT15

Délai : à partir de 6 mois Superficie : 151,95 m²

Maison à étage traditionnelle: MT16

Maison à étage traditionnelle: MT16

Délai : à partir de 6 mois Superficie : 191,87 m²

Maison à étage traditionnelle: MT17

Maison à étage traditionnelle: MT17

Délai : à partir de 6 mois Superficie : 138,24 m²

Maison à étage traditionnelle: MT18

Maison à étage traditionnelle: MT18

Délai : à partir de 6 mois Superficie : 174,10 m²

Maison à étage traditionnelle: MT19

Maison à étage traditionnelle: MT19

Délai : à partir de 6 mois Superficie : 101,03 m²

Maison à étage traditionnelle: MT20

Maison à étage traditionnelle: MT20

Délai : à partir de 6 mois Superficie : 110,37 m²

Maison à étage traditionnelle: MT21

Maison à étage traditionnelle: MT21

Délai : à partir de 6 mois Superficie : 99,98 m²

Vous souhaitez être contacté ?

Nos équipes se tiennent à votre disposition pour aborder votre situation, vos projets de construction et répondre à l’ensemble des questions que vous pourriez vous poser.

02 98 61 30 22